• Tapetentüren flächenbündig mit der Wand

    Tapetentüren

    Identische Ansicht, unabhängig von der Öffnungsrichtung.

Serie ZEROLINE

Weniger ist mehr. Unsichtbare Türen – flächenbündig und rahmenlos, mit schmaler Fuge abgegrenzt, mit zur Wand abgestimmten Oberflächen, werden klassisch als Tapetentüren bezeichnet. Mitunter dient die Tapetentür auch als reduziertes Designelement für den Durchgang ohne Rahmen. Minimalismus und Leichtigkeit, die vorwiegend im Wohnbereich zum Einsatz kommt.

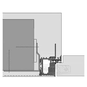
Tapetentüren sind unsichtbar in die Wand integriert. Sie schließen flächenbündig mit der Wandkante ab und können variabel eingesetzt werden. Dabei kann die Tür wahlweise in den Flur oder in den Raum öffnen. Die Tapetentüren werden stets mit einem verdeckten Bandsystem ausgestattet.

In den Flur oder in den Raum öffnend?

Egal, ob die Tapetentür in den Raum oder in den Flur öffnen soll, die Ansicht ist immer identisch.

Die Zarge schließt bündig mit der Wandkante ab, sie ist faktisch in die Wand "eingebaut" bzw. eingeputzt. Bei geschlossener Tür bleibt lediglich eine schmale Fuge sichtbar. 

Die Öffnungsrichtung der Tapetentürzargen kann noch vor dem Einbau der Zarge festgelegt oder geändert werden. Durch die Möglichkeit den Befestigungs- / Wandanker zu drehen ist die Montage und somit die Richtung in welche die Tür öffnen soll, völlig flexibel.

Je nach Wanddicke und Laibungstiefe ist für die invers öffnende Ausführung ggf. ein Türstopper erforderlich.

In den Raum oder in den Flur öffnend

Downloads

Tapetentüren

wandbündige Türen - ohne sichtbare Zarge

Weniger ist mehr. Unsichtbare Türen - flächenbündig und rahmenlos mit schmaler Fuge abgegrenzt, oft mit zur Wand abgestimmten Oberflächen - das sind Tapetentüren. Bei geschlossener Tür sind die Zargen unsichtbar in der Wand verborgen.

Tapetentüren Anfrage- / Bestellformular

Tapetentüren

Anfrage / Bestellung

Formular zu Klärung der Abmessungen, Oberflächen und technischen Eigenschaften der Zarge und des Türblatts.

Referenzen Tapetentüren